Серия HZS
Завод по производству товарного бетона
- Производительность 90–270 м³/ч.
- Компоновка установки экологичный завод по производству товарного бетона с гибкими вариантами дозирования.
По мере перехода городского строительства к коммерческому производству товарного бетона и более экологичным стандартам компания модернизировала свои бетонные заводы, сделав приоритетом экологические требования и производственную эффективность. Эти установки отличаются стабильной работой и широко используются производителями товарного бетона.
Данная серия поддерживает как компоновку со стальными бункерами заполнителей, так и наземную компоновку. Варианты со стальными бункерами используют секционные сборные панели, что ускоряет монтаж, тогда как наземные варианты предусматривают железобетонные подпорные стены, обеспечивающие большую вместимость хранения. Ленточные конвейеры могут оснащаться очистителями, желобами для сбора материалов и моечными системами для их возврата в производство. Для снижения воздействия на окружающую среду основная башня комплектуется импульсной системой пылеулавливания, а опциональное ограждение из цветных стальных панелей дополнительно уменьшает запыленность и шум.
Технические параметры
| Параметр | |
|
|
|
|
| Теоретическая производительность (м³/ч) | 90 | 120 | 180 | 240 | 270 |
| Модель смесителя | JS1500B | JS2000B | JS3000B | JS4000B | JS4500B |
| Модель дозатора заполнителей | HP2400A/D | HP3200B/D | HP4800C/D | HP6400B/D | HP7200B/D |
| Вместимость одного бункера дозатора (м³) | 12/14 | 17 | 22 | 30 | 32 |
| Производительность ленточного конвейера (т/ч) | 400 | 500 | 700 | 800 | 800 |
| Модель шнекового конвейера | LSY219/ LSY273 | LSY219/ LSY273 | LSY219/ LSY273/ LSY325 | LSY219/ LSY273/ LSY407 | LSY219/ LSY273/ LSY407 |
| Вместимость силоса для цемента | 100/150/200/300 т, опционально | ||||
| Точность дозирования заполнителей | ±2% | ±2% | ±2% | ±2% | ±2% |
| Точность дозирования цемента | ±1% | ±1% | ±1% | ±1% | ±1% |
| Точность дозирования золы-уноса | ±1% | ±1% | ±1% | ±1% | ±1% |
| Точность дозирования минерального порошка | ±1% | ±1% | ±1% | ±1% | ±1% |
| Точность дозирования воды | ±1% | ±1% | ±1% | ±1% | ±1% |
| Точность дозирования химических добавок | ±1% | ±1% | ±1% | ±1% | ±1% |
| Ориентировочная суммарная мощность (кВт) | 135 | 170 | 220 | 280 | 280 |
| Высота выгрузки (м) | 4,1 | 4,1 | 4,2 | 4,2 | 4,2 |
Примечание:
- Количество и вместимость бункеров для заполнителей и силосов для цемента полностью настраиваются. Системы взвешивания могут быть выполнены как с суммарным, так и с раздельным измерением — в зависимости от требований проекта.
- Показатели суммарной мощности не включают потребление электроэнергии шнековыми конвейерами.
- Стандартная высота выгрузки измеряется от выпускного отверстия разгрузочного бункера.
- Технические характеристики могут оптимизироваться и изменяться без предварительного уведомления. Для окончательных данных следует обращаться к актуальной документации по продукции.
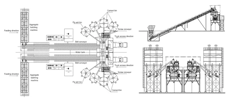
Схема технологического процесса
Основные узлы
Бетоносмеситель
Оснащается стандартным двухвальным бетоносмесителем серии JS, отличающимся высокой скоростью смешивания, высокой однородностью смеси, а также стабильной и надежной работой.
Дозирующий комплекс
Доступны варианты со стальным бункером для заполнителей или с бункером на базе бетонных стен. Стальной вариант имеет модульную панельную конструкцию для удобного монтажа, а вариант с бетонными стенами обеспечивает увеличенную вместимость хранения.
Ленточный конвейер
Системы ленточных конвейеров полностью настраиваются и могут выполняться с шевронной, желобчатой или плоской лентой в зависимости от планировки площадки. Для безопасной эксплуатации и минимизации простоев система оснащается сигнализацией схода ленты с возможностью коррекции в реальном времени. Каждая установка комплектуется сервисными проходами, защитными дождевыми кожухами, желобами для сбора материалов и встроенными моечными системами. Эти решения способствуют возврату остаточных материалов в производство, обеспечивают экологическое соответствие и аккуратный внешний вид комплекса.
Шнековый конвейер
Шнековые конвейеры для порошкообразных материалов выполняются в корпусах из высококачественной стальной трубы, а секции соединяются фланцами. Винтовая лопасть с переменным шагом обеспечивает плавную подачу материала. Для удобства монтажа на площадке предусмотрены карданные соединения.
Система взвешивания
Система взвешивания оснащается высокоточными тензодатчиками, обеспечивающими стабильное и точное измерение. Для выпуска материалов используются высококачественные пневматические дисковые затворы, которые быстро срабатывают и обеспечивают герметичное перекрытие без утечек.
Основная башня
В зависимости от условий площадки могут применяться основные башни как в стальном исполнении, так и на базе железобетонного каркаса. Стальная башня имеет модульную секционную конструкцию, что упрощает транспортировку и монтаж. Опционально доступно ограждение из цветных стальных панелей для снижения шума и пылевого загрязнения.
Реализованные проекты
Основанная в 1991 году компания JINRUI является профессиональным производителем бетонных заводов с более чем 30-летним опытом работы в отрасли. Наше оборудование — от стационарных до интегрированных бетонных заводов — применяется на объектах высокоскоростных железных дорог, мостов и аэропортов, обеспечивая надежные решения по производству бетона с учетом различных строительных циклов и условий площадки.
Получите профессиональную консультацию по вашему проекту — свяжитесь с нашими специалистами уже сегодня.
